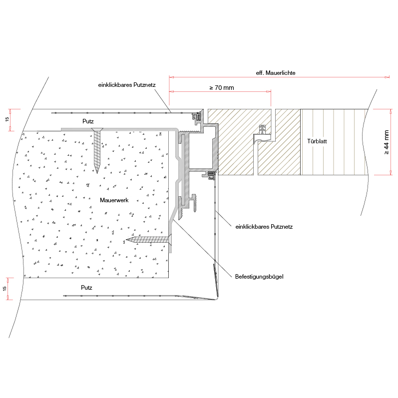
Zargenprofil AGS-SYSTEMS TP, für ein- und auswärts öffnende, wandbündige Blockrahmentüren







12.102.01-03








Zargenprofil AGS-SYSTEMS TP, für ein- und auswärts öffnende, wandbündige Blockrahmentüren
12.102.
konfektionierte Aluminiumprofile für wandbündige Türkonstruktionen mit perfekter Kantenausbildung und filigraner Schattenfuge, ohne Probleme mit Haarrissbildung, die mit einer unästhetischen Acrylfuge verschlossen werden müsste, das mitgelieferte Putznetz wird in das Zargenprofil eingeklickt und stellt somit eine feste Verbindung zwischen Türzarge und Mauerwerk / Trockenbau her, für eine schnelle und fachgerechte Montage sind Montagebügel und Eckverbinder vorgesehen, mit Montageanleitung
12.102.01 Zargenprofil TP Set A 2200, bestehend aus:
2 Stück Zargenprofile TP 2200 mm,
1 Stück Zargenprofil TP 1100 mm,
6 Stück Befestigungsbügel verstellbar für TUT, TUS, TP,
1 Eckverbinder-Set für TUT, TUS,
1 Distanzschienen-Set für TUT, TUS, TP,
5 Stück Putznetze PVC Länge 2300 mm
12.102.02 Zargenprofil TP Set B 2750, bestehend aus:
2 Stück Zargenprofile TP 2750 mm,
1 Stück Zargenprofil TP 1100 mm,
8 Stück Befestigungsbügel verstellbar für TUT, TUS, TP,
1 Eckverbinder-Set für TUT, TUS,
1 Distanzschienen-Set für TUT, TUS, TP,
6 Stück Putznetze PVC Länge 2300 mm
12.102.03 Zargenprofil TP Set C 2750, bestehend aus:
2 Stück Zargenprofile TP 2750 mm,
8 Stück Befestigungsbügel verstellbar für TUT, TUS, TP,
2 Distanzschienen-Set für TUT, TUS, TP,
5 Stück Putznetze PVC Länge 2300 mm
- Objektband Tectus siehe 10.400. bis 10.404.
- Objektband Pivota siehe 10.500. bis 10.506.
- Dichtungen siehe 12.611.
- Magnetschloss siehe 15.280. bis 15.282.

- Marke
- AGS-Systems
- Türdicke
- 44 - 60 mm























