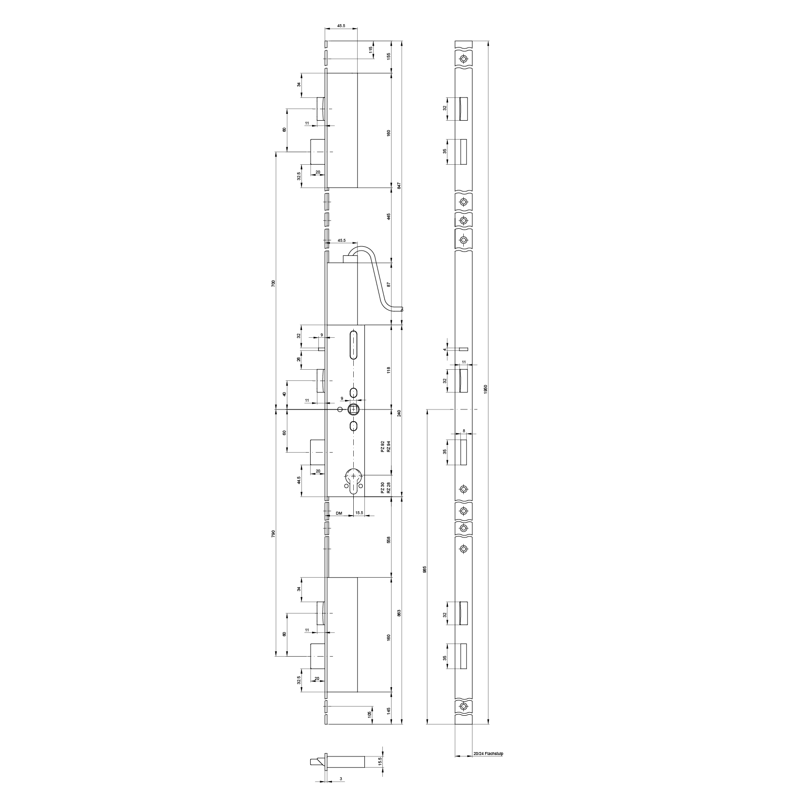
Panik-Mehrpunktverriegelung MSL 25574PE-SV, mFlipLock access, 1-flüglig



17.728. / 17.729., Abbildung = DIN links




Panik-Mehrpunktverriegelung MSL 25574PE-SV, mFlipLock access, 1-flüglig
17.728.
Das Verlassen bei verriegelter Türe, ist über den Innendrücker, eine Panikstange oder eine Pushbar jederzeit möglich. Diese ziehen die 3 Langriegel zurück und gleichzeitig werden die 3 Kippfallen weich (Panikfunktion). Von aussen ist ein Knauf oder eine Griffstange montiert. Die Türe lässt sich über einen elektronischen Impuls, Fingerprint, Taster, Badge oder Zeitschaltuhr oder mit dem Schlüssel über den Wechsel von aussen öffnen. Bei verriegelter Tür ist eine Notöffnung von aussen über den Zylinder jederzeit möglich. Wenn die Türe schliesst, verriegelt das Schloss automatisch wieder (Selbstverriegelung). Dieses Schloss gibt es immer in Kombination mit einer Auswertesteuerung (AWS), sie dient dazu alle Kontakte des Motorschlosses mFlipLock access auswerten zu können. Das Motorschloss kann somit für definierte Zeiten geöffnet, geschlossen, in Tagstellung gefahren oder komplett verriegelt (gesperrt) werden. Die Versorgungsspannung für das Motorschloss wird ebenfalls von der AWS zur Verfügung gestellt. Im Notfallmodus (Netzausfall / Auslösung Brandmeldezentrale) wird das Motorschloss im geöffneten Zustand automatisch durch einen integrierten Puffer-Kondensator verriegelt. Beim separaten Sperreingang (verriegelt) werden alle Eingangssignale abgekoppelt, somit fährt das Motorschloss automatisch in Verrieglung.
Ausführung:
Panikfunktion E, motorisch, 1-flüglig, Auswertung Schlosskontakte, selbstverriegelnd, Stulphöhe 1950 mm
Anwendungsgebiet:
- Eingangstüren, IT-Serverräume, Industriebereich und öffentliche Gebäude
- Sicherheits-, Fluchtweg- und Feuerschutztüren im Objektbereich
Normen:
- Zulassung nach EN 179
- Zulassung nach EN 1125
- Zulassung nach EN 1634-1 bis 3 mit AWS
- Zulassung nach EN 12209 Klasse 7
- Zulassung nach EN 18251-2 Klasse 5
- Einbruchhemmend bis Klasse RC3 in geeigneten Türsystemen erreichbar
Hinweis:
- Geeignet für Drehknopf- und Freilaufzylinder
- Externe Riegelschaltkontakte nicht zugelassen
- Betriebsnennspannung: 11 - 27 V DC
- Öffnungssignal (GND) z.B. via Fingerprint, Taster, Zeitschaltuhr, usw
- Elektrische Schnittstelle RS485, z.B. für direkte Kommunikation via Biometriescanner und Fehlerspeicher. Manipulationsschutz Öffnungsimpuls nur noch via BUS
- Schliessblech siehe 14.168.
- Stulpverlängerung siehe 14.169.11-27
- Anschlusskabel siehe 17.273.91-92
- Netzteil siehe 17.328.35-36, 17.328.44-45 und 17.328.51-52
- Notstrompuffer siehe 17.365.93
- Kabelübergang siehe 17.561.75+76
- Gela Plug&Play siehe 17.564.38
- Gela Plug&Play Keypad siehe 17.572.23+28
- Prüfbox siehe 99.047.01
- Andere Ausführungen auf Anfrage.
- Brandschutz: nur in Kombination mit Auswertesteuerung für Brandschutz geeignet, siehe 17.393.90

- Marke
- MSL
- Produktart
- Panik-Mehrpunkteverriegelung
- Nuss
- 9
- Panikfunktion
- E
- Stulplänge
- 1950 mm
- Anzahl Flügel
- 1-flüglig
- Fluchtwegnorm
- SN EN 179 / 1125
- Verriegelung
- Selbstverriegelung (SV)
- Brandschutznorm
- geprüft
- Widerstandsklasse
- ES2 / RC3
- Bedienung
- Schlüsselbedient
- Überwachung
- ja
- Betriebsspannung
- 12, 24 ± Volt
- Touren
- 1-tourig
- Riegelvorschub
- 20 mm
- Material
- Edelstahl, Stahl
- System
- mFlipLock access
- Funktion
- motorisch























