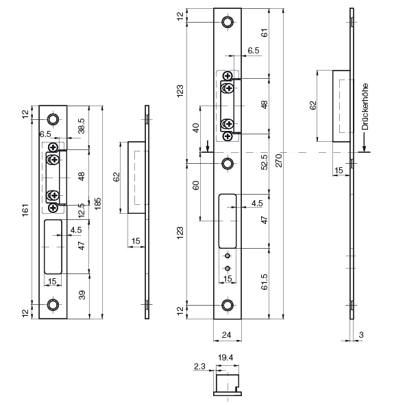
Flachschliessblech-Set MSL BV-24421 VariFlex, zu Mehrpunktverriegelung FlipLock


14.168.11


prev
next

Flachschliessblech-Set MSL BV-24421 VariFlex, zu Mehrpunktverriegelung FlipLock
14.168.
Edelstahl matt, eckig, mit Austauschstück (ATS) verstellbar von 0 bis 3 mm, mit Ausschnitt für Riegel und Falle, Mittelschliessblech vorbereitet für Riegelschaltkontakt 1886, universal DIN rechts und DIN links verwendbar, Set 3-teilig, bestehend aus 1 Mittel- und 2 Zusatzschliessblechen,
ohne Schrauben
- Mehrpunktverriegelungen FlipLock siehe 14.164. bis 14.165.
- Schrauben SK Ø 4 mm.

- Anschlagsrichtung
- DIN universal
- verwendbar
- universal
- Material
- Edelstahl matt
- Länge
- 270 / 161 mm
- Breite
- 24 mm
- Oberfläche
- Edelstahl matt
- Tiefe
- 18 mm
- Stärke
- 3 mm
- verstellbar
- 0 - 3 mm
- Marke
- MSL
- Produktart
- Flachschliessblech
- Brandschutz
- ungeprüft
- Fabriknummer
- BV-24421.R6333

