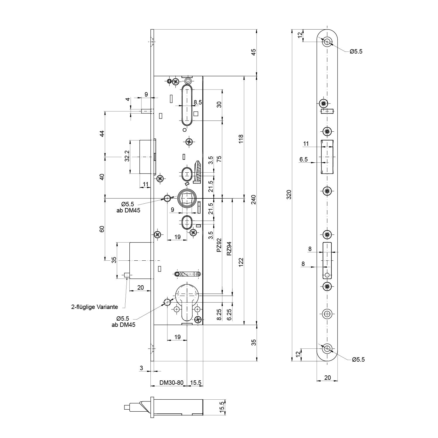
Panik-Einsteckschloss MSL 14544PE-SV-ZF, sFlipLock standard, 2-flüglig



17.768.06-83, Abbildung = DIN Links




Panik-Einsteckschloss MSL 14544PE-SV-ZF, sFlipLock standard, 2-flüglig
17.768.
Das Verlassen bei verriegelter Türe, ist über den Innendrücker, eine Panikstange oder eine Pushbar jederzeit möglich. Diese ziehen den Langriegel zurück und gleichzeitig wird die Kippfalle weich (Panikfunktion). Von aussen ist ein Knauf oder eine Griffstange montiert. Die Türe lässt sich mit dem Schlüssel über den Wechsel von aussen öffnen. Wenn die Türe schliesst, verriegelt das Schloss automatisch (Selbstverriegelung). Nur erhältlich in Kombination mit einer Panik-Standflügelverriegelung. Diese ermöglicht immer ein Öffnen, auch bei verriegeltem Schloss des Gehflügels (Panikfunktion) mittels Drücker, Panikgarnitur oder Pushbar. Selbstverriegelnd beim Schliessen der Türe durch Schaltschlossauslösung.
Ausführung:
Panikfunktion E, 2-flüglig, selbstverriegelnd, Stulphöhe 320 mm
Anwendungsgebiet:
- zweiflügelige Vollpaniktüren
- Sicherheits-, Fluchtweg- und Feuerschutztüren im Industriebereich und öffentliche Gebäude, auch in Kombination mit elektronischen Beschlägen wie einer Pushbar
Normen:
- Zulassung nach SN EN 179
- Zulassung nach EN 1125
- Zulassung nach EN 1634-1 bis 3
- Einbruchhemmend bis Klasse RC2 in geeigneten Türsystemen erreichbar
Hinweis:
- Geeignet für Drehknopf- und Freilaufzylinder
- Nicht geeignet für externe Riegelkontakte
- Panik-Standflügelverriegelung siehe 17.278.
- Schlossunterlage siehe 14.168.61+62
-
Zubehör für Untenverriegelung siehe 17.223.07-35
-
Zubehör für Obenverriegelung siehe 17.223.57-88
- Schliessblech siehe 17.279.
- Andere Ausführungen auf Anfrage.

- Marke
- MSL
- Produktart
- Panik-Einsteckschloss
- Panikfunktion
- E
- Stulpstärke
- 3 mm
- Stulplänge
- 320 mm
- Fluchtwegnorm
- SN EN 179 / 1125
- Verriegelung
- Selbstverriegelung (SV)
- Brandschutznorm
- geprüft
- Widerstandsklasse
- ES1 / RC2
- Bedienung
- Schlüsselbedient
- Touren
- 1-tourig
- Riegelvorschub
- 20 mm
- Material
- Edelstahl, Stahl
- Oberfläche Stulp
- Edelstahl matt
- System
- sFlipLock standard
- Funktion
- mechanisch














