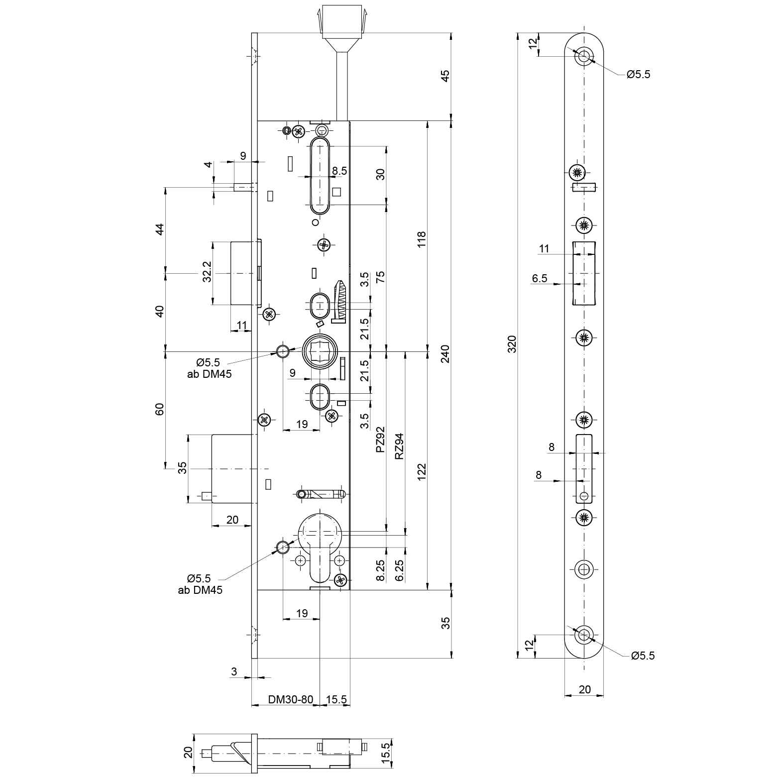
Serrure anti-panique à mortaiser MSL 14574PE-SV-TF-ZF, sFlipLock check, 2 vantaux


17.777.06-68, Figure = DIN à gauche



Serrure anti-panique à mortaiser MSL 14574PE-SV-TF-ZF, sFlipLock check, 2 vantaux
17.777.
Ces serrures à entailler sont équipées de contacts de surveillance / signalisation. (Surveillance de l'état du pêne pilote, de la poignée, du pêne dormant et du cylindre). Une telle serrure est de plus équipée d'une fonction jour pouvant être activée mécaniquement (rotation de la clé en état ouvert dans le sens de la fermeture jusqu'au butoir). Il est maintenant possible de franchir la porte dans les deux sens, car le bec de cane pivotant est désormais libéré et fonctionne ainsi de manière similaire à un pêne à rouleau. Lorsque la fonction jour est désactivée, (rotation de la clé en état ouvert dans le sens de l'ouverture), la serrure verrouille automatiquement lorsque l'on ferme la porte (autoverrouillage). Lorsque la porte est verrouillée, elle peut être ouverte à tout moment de l'intérieur pour quitter le local par l'actionnement de la poignée intérieure, d'une barre anti-panique standard ou d'une barre anti-panique de poussée. Un tel actionnement entraîne le rappel du pêne long ainsi que la libération du bec de cane pivotant (fonction anti-panique). L'extérieur est équipé d'un bouton ou d'une barre de manœuvre. La porte peut être ouverte de l'extérieur avec la clé, qui actionne le levier de rappel du bec de cane. Uniquement disponible en combinaison avec un verrouillage de vantail fixe anti-panique. Celui-ci permet toujours d'ouvrir la porte par l'actionnement de la poignée, de la garniture anti-panique ou de la barre anti-panique de poussée, même lorsque la serrure du vantail de service est verrouillée (fonction anti-panique). Verrouillage automatique lors de la fermeture de la porte par déclenchement du verrou de commutation.
Exécution:
Fonction anti-panique E avec contacts, 2 vantaux, verrouillage automatique, fonction jour, hauteur de têtière 320 mm
Domaine d'utilisation:
- Pour portes anti-panique totale à deux vantaux
- Portes d'entrée, portes palières, bâtiments publics
- Portes de sécurité, d'issues de secours et coupe-feu dans les domaines professionnels et industriels
- Bâtiments publics en combinaison avec des composants d'accès
Normes:
- Homologation selon EN 179
- Homologation selon EN 1125
- Homologation selon EN 1634-1 à 3
- Possibilité d'atteindre une protection anti-effraction de catégorie RC2 sur des systèmes de porte appropriés
Remarque:
- Compatible avec cylindre à bouton et cylindre débrayable
- Non-compatible avec des contacts de fond de pêne
- Pour Verrouillage du vantail dormant anti-panique, voir 17.278.
- Pour Support de serrure, voir 14.168.61+64
- Pour Câble de raccordement, voir 17.273.96-97
- Accessoires pour verrouillage par le bas, voir 17.223.06-35
- Accessoires pour verrouillage par le haut, voir 17.223.57-88
- Gâche, voir 17.279.
- D'autres exécutions sur demande.

- Marque
- MSL
- Type de produit
- Serrures à mortaiser anti-panique
- Fouillot
- 9
- Larg. têtière
- 20 mm
- Type de têtière
- Rond
- Fonction d'évacuation
- E
- Longueur de têtière
- 320 mm
- Épaisseur de la têtière
- 3 mm
- Nombre de vantaux
- 2 vantaux
- Fonction panique
- SN EN 179 / 1125
- Verrouillage
- Auto-verrouillage
- Norme de sécurité incendie
- non vérifié
- Classe de résistance
- ES1 / RC2
- Type de porte
- Bois
- Fonctionnement
- Fonctionnement par une clé
- Fonction jour ou nuit
- Fonction jour
- Surveillance
- oui
- Tours
- 1 tour
- Avancement du pêne
- 20 mm
- Matériau
- acier inoxydable, acier
- Système
- sFlipLock check
- Fonction
- mécanique
















