Fiche pour objets BASYS PIVOTA® DX 42 3-D





10.500.21





prev
next

Fiche pour objets BASYS PIVOTA® DX 42 3-D
10.500.
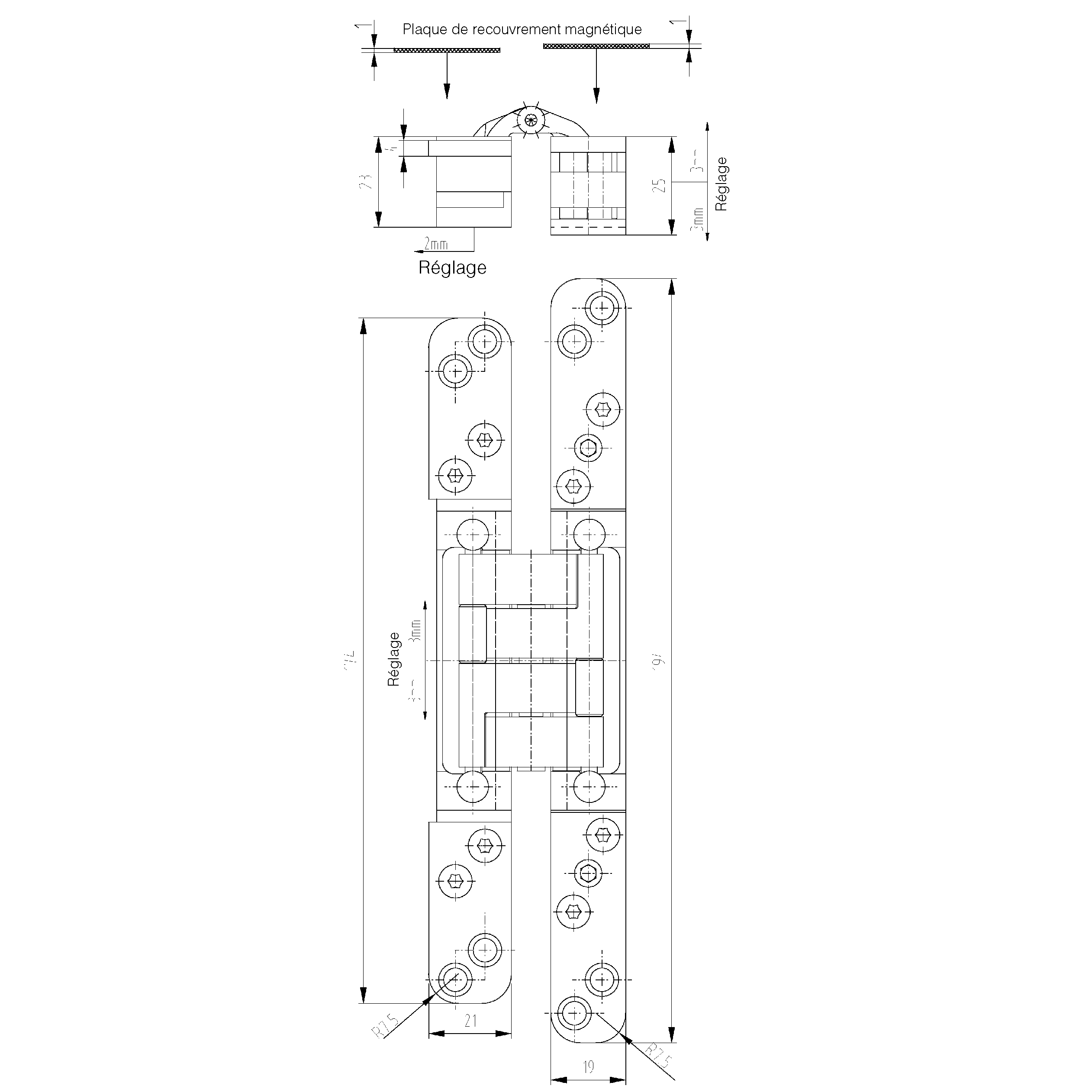
Châssis aluminium, platines acier, pour portes noyées, avec la porte fermée, la bande est invisible, réglage tridimensionnel, sans entretien, avec vis visibles ou modèle Design, avec vis de montage, force portante avec 2 fiches env. 60 kg
Modèle design:
Cette option convient parfaitement pour un aspect puriste, des plaques de recouvrement maintenues par des aimants permettent d'accéder facilement aux vis de fixation tout en les recouvrant de manière esthétique
- Plaque de logement, voir 10.508.29
- Support de bande n'est pas disponible.

- Marque
- BaSys
- Type de produit
- Fiche pour objets
- Hauteur des platines
- 194 / 174 mm
- Poids du vantail max.
- 60 kg
- Modèle
- Pivota
- Matériau
- Aluminium, acier
- Finition
- velours nickelé


