Objektband BASYS PIVOTA® DX 120 3-D




10.504.22




prev
next

Objektband BASYS PIVOTA® DX 120 3-D
10.504.
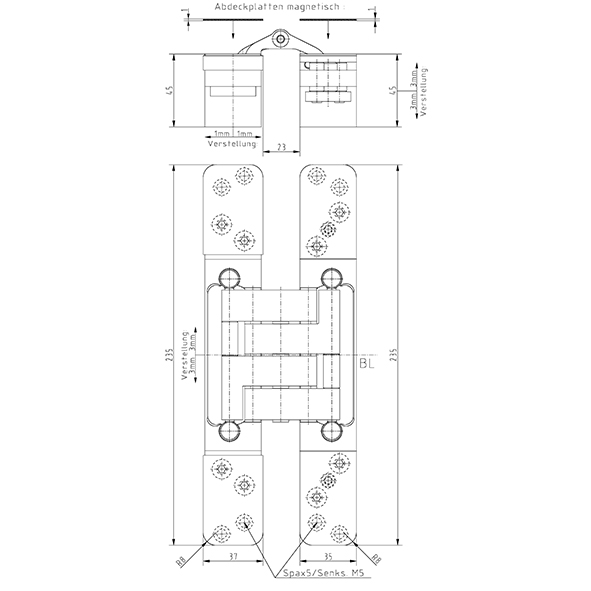
Gehäuse Aluminium, Lappen Stahl, für stumpf einschlagende Türen, bei geschlossener Tür ist das Band unsichtbar, 3-dimensionale Verstellung, wartungsfreie Lagerungen, durch grosse Auslenkung für Aufdoppelungen geeignet, mit sichtbaren Schrauben oder Design, zur Verwendung an Türen in Flucht- und Rettungswegen mit Anforderungen an den Rauch- und Brandschutz, ohne Schrauben, Tragkraft bei 2 Band ca. 150 Kilo
Ausführung Design:
Für puristische Optik ist diese Option bestens geeignet, magnetisch gehaltene Abdeckplatten bieten leichten Zugang zu den Befestigungsschrauben, decken diese aber in ästhetischer Weise ab

- Brandschutznorm
- geprüft
- Fluchtwegnorm
- geeignet für Fluchtweg
- Marke
- BaSys
- Produktart
- Objektband
- Lappenhöhen
- 235 mm
- Flügelgewicht max.
- 150 kg
- Modell
- Pivota
- Material
- Aluminium, Stahl
- Oberfläche
- vernickelt velours





