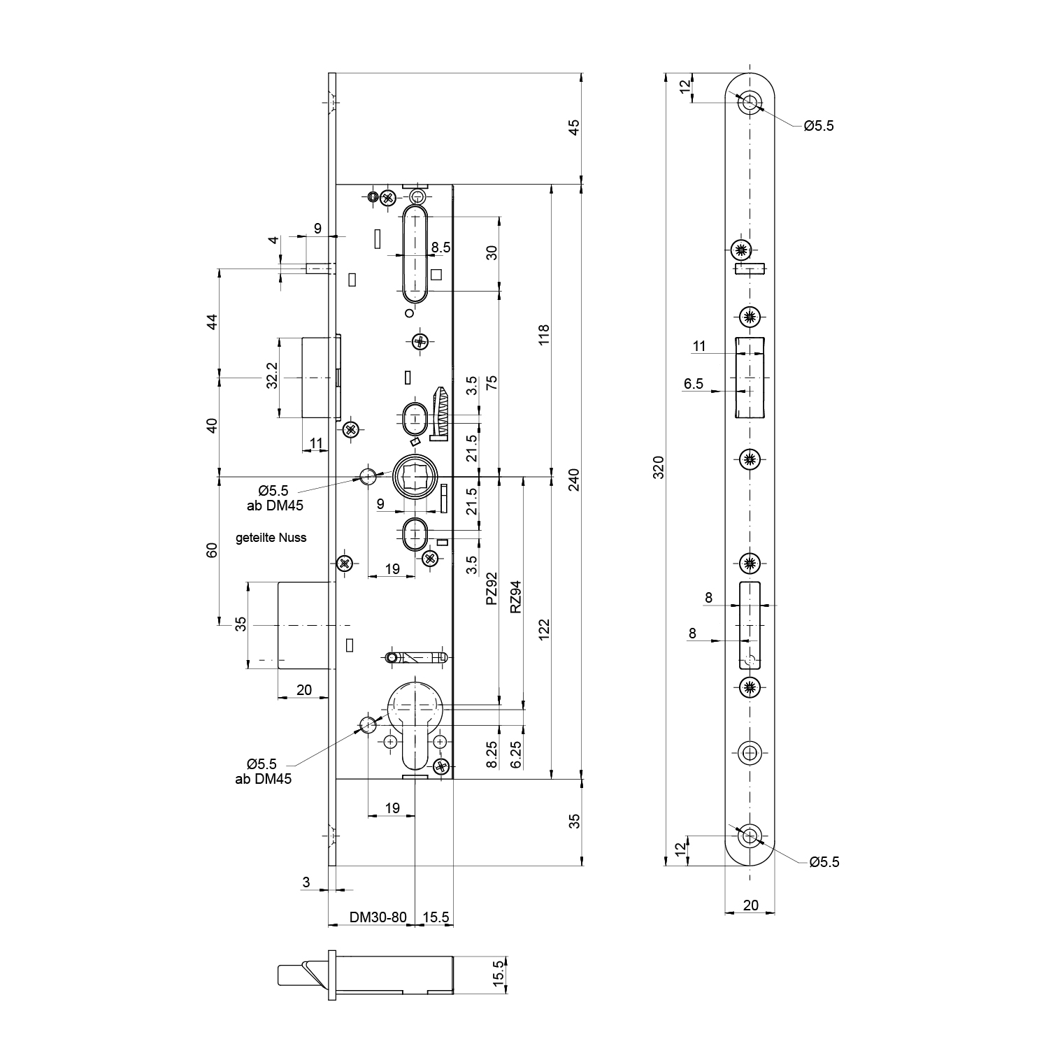
Panik-Einsteckschloss MSL 14544PE-SV-TF, sFlipLock standard, 1-flüglig



17.771.06-83, Abbildung = DIN links




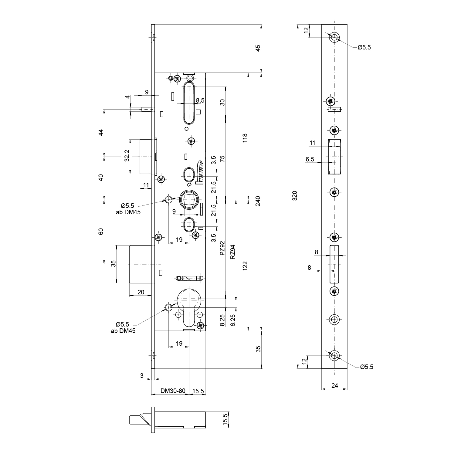
Panik-Einsteckschloss MSL 14544PE-SV-TF, sFlipLock standard, 1-flüglig
17.771.
Diese Einsteckschlösser haben eine mechanisch zuschaltbare Tagesfunktion (Schlüsseldrehung in offenem Zustand in Schliessrichtung bis zum Anschlag). Die Türe ist dadurch beidseitig begehbar, da die Kippfalle weich ist und analog einer Rollfalle funktioniert. Bei ausgeschalteter Tagesfunktion, (Schlüsseldrehung in offenem Zustand in Öffnungsrichtung), verriegelt das Schloss beim Schliessen der Türe automatisch (Selbstverriegelung). Das Verlassen bei verriegelter Türe, ist über den Innendrücker, eine Panikstange oder eine Pushbar jederzeit möglich. Diese ziehen den Langriegel zurück und gleichzeitig wird die Kippfalle weich (Panikfunktion). Von aussen ist ein Knauf oder eine Griffstange montiert. Die Türe lässt sich mit dem Schlüssel über den Wechsel von aussen öffnen.
Ausführung:
Panikfunktion E, 1-flüglig, selbstverriegelnd, Tagesfunktion, Stulphöhe 320 mm
Anwendungsgebiet:
- Neu- und Renovationsbereich
- Im Hausinnenbereich
- In Sicherheits-, Fluchtweg- und Feuerschutztüren
Normen:
- Zulassung nach SN EN 179
- Zulassung nach EN 1125
- Einbruchhemmend bis Klasse RC2 in geeigneten Türsystemen erreichbar
Hinweis:
- Geeignet für Drehknopf- und Freilaufzylinder
- Nicht geeignet für externe Riegelkontakte
- Schliessbleche siehe 14.168.
- Schlossunterlage siehe 14.168.61+62
- Andere Ausführungen auf Anfrage.

- Marke
- MSL
- Produktart
- Panik-Einsteckschloss
- Panikfunktion
- E
- Stulpstärke
- 3 mm
- Stulplänge
- 320 mm
- Anzahl Flügel
- 1-flüglig
- Fluchtwegnorm
- SN EN 179 / 1125
- Verriegelung
- Selbstverriegelung (SV)
- Brandschutznorm
- ungeprüft
- Widerstandsklasse
- ES1 / RC2
- Bedienung
- Schlüsselbedient
- Tages- oder Nachtfunktion
- Tagesfunktion
- Touren
- 1-tourig
- Riegelvorschub
- 20 mm
- Material
- Edelstahl, Stahl
- Oberfläche Stulp
- Edelstahl matt
- System
- sFlipLock standard
- Funktion
- mechanisch









