Verbindungsprofil HAWA zu Concepta 35 Pre-mounted


49.274.92


prev
next

Verbindungsprofil HAWA zu Concepta 35 Pre-mounted
49.274.
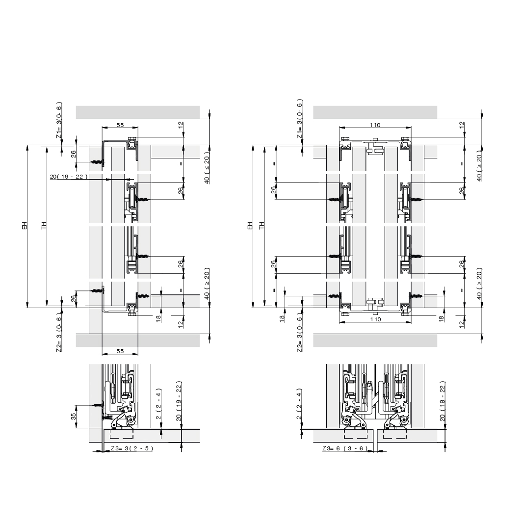
Aluminium farblos eloxiert, zu Aussenseite oder Korpus aus Holz, für 1 Dreh-Einschiebetüre, Breite 55 mm, mit Adapterprofil, Verbindungsprofile sind eine durchdachte Montagevereinfachung für Konstruktionen mit auf Boden und Oberboden aufschlagenden Dreh-Einschiebetüren

- Marke
- Hawa
- Produktart
- Zubehör
- System
- Concepta 35
- Anzahl Flügel
- 1 Stück
- Türart
- Holz
- Lichtmass
- 650 mm
- Material
- Aluminium
- Oberfläche
- farblos eloxiert
- Fabriknummer
- 30351
