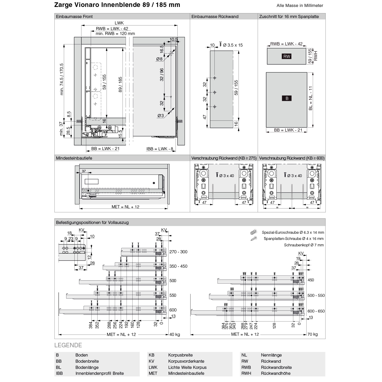
Innenblende GRASS® Vionaro H89 / H121 / H185




58.209.01




prev
next

Innenblende GRASS® Vionaro H89 / H121 / H185
58.209.
Aluminium, zum Ablängen, ohne Endkappen
- Unterflur-Führungssystem Dynapro Vollauszug siehe 58.008.
- Zarge für Innenschubladen H89 siehe 58.207.
- Zarge für Innenschubladen H121 siehe 58.212.
- Zarge für Innenschubladen H185 siehe 58.213.
- Montage-Set für Innenblende H89 siehe 58.218.14-16
- Montage-Set für Innenblende H121 siehe 58.218.31-33
- Montage-Set für Innenblende H185 siehe 58.218.17-19
- Weiteres Zubehör siehe 58.219.

- Marke
- Grass
- Produktart
- Innenblende
- Produktlinie
- Vionaro
- Länge
- 1160 mm
- Material
- Aluminium

















