Objektband SIMONSWERK VARIANT VX 7859 / 160-4 FD



10.364.79



prev
next

Objektband SIMONSWERK VARIANT VX 7859 / 160-4 FD
10.364.79
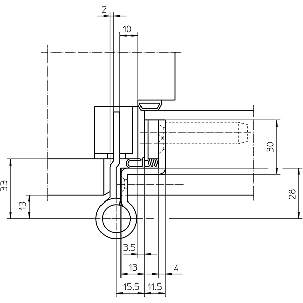
Edelstahl matt, für gefälzte, flächenbündig einschlagende Schallschutztüren mit durchgehender Flügeldichtung an Holz-, Stahl- und Aluminiumzargen, innenliegender, verdrehsicherer Schraubstift, verdeckt liegende, wartungsfreie Axial-Radial-Gleitlager, Lappendicke 4 mm, Anschlagluft 3,5 mm, geeignet zur Anwendung an Feuer- und Rauchschutztüren nach EN 1634-1, vorgerichtet für 3D-Aufnahmeelement VX, Tragkraft bei 2 Band ca. 160 Kilo, ohne Aufnahmeelement
- Aufnahmeelement VX siehe 10.378.
- Schrauben SK Ø 5 x 50 mm siehe 69.010.60
- Universal-Fräsrahmen siehe 99.150.
- Frässchablone siehe 99.156.
- Fräser-Ø 24 mm.
- Die Tragkraft bezieht sich auf eine Türgrösse von 1000 x 2000 mm mit 2 Band.
Preis per 1 ST | Pack 2 ST
Stück
- Brandschutznorm
- geprüft
- Fabriknummer
- 5 051528 0 04002
- Falzart
- gefälzt
- Flügelgewicht max.
- 160 kg
- Lappendicke
- 4 mm
- Lappenhöhe
- 160 mm
- Marke
- Simonswerk
- Material
- Edelstahl
- Modell
- Variant VX
- Oberfläche
- matt
- Produktart
- Objektband
- Rollen-Ø
- 22,5 mm












