Fiche pour objets BASYS PIVOTA® DX 100 3-D





10.503.11





prev
next

Fiche pour objets BASYS PIVOTA® DX 100 3-D
10.503.
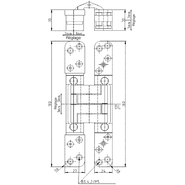
Châssis acier, platines acier, pour portes noyées, avec la porte fermée, la bande est invisible, réglage tridimensionnel, sans entretien, avec vis visibles ou modèle Design, pour l'utilisation sur des portes dans des voies d'évacuation et de secours avec des exigences en matière de protection contre la fumée et l'incendie, avec vis de montage, force portante avec 2 fiches env. 120 kg
Modèle design:
Cette option convient parfaitement pour un aspect puriste, des plaques de recouvrement maintenues par des aimants permettent d'accéder facilement aux vis de fixation tout en les recouvrant de manière esthétique

- Norme de sécurité incendie
- vérifié
- Fonction panique
- convient pour l'issue de secours
- Marque
- BaSys
- Type de produit
- Fiche pour objets
- Poids du vantail max.
- 120 kg
- Modèle
- Pivota
- Matériau
- Acier







